1 mq
A Rende (CS) In Via Kennedy II traversa ISFIN Immobiliare propone in Vendita le ultime unità abitative di un intervento edilizio di nuova realizzazione "IN FORMA DI COOPERATIVA " che prevede la demolizione di un fabbricato esistente e la costruzione di un moderno edificio antisismico, realizzato secondo le più recenti tecnologie costruttive ed energetiche.
Il complesso sarà composto da: 8 piani fuori terra ad uso esclusivamente residenziale; piano seminterrato destinato a box auto; corte esterna recintata con parcheggi condominiali.
Sono disponibili appartamenti di diverse metrature per soddisfare ogni esigenza abitativa.
L'intervento sarà realizzato in forma cooperativa, consentendo l'accesso a prezzi particolarmente competitivi rispetto al mercato.
Modalità di pagamento: Acconto del 25% alla sottoscrizione del contratto di assegnazione; Ulteriori acconti tramite rate bimestrali, a partire dall'effettivo inizio dei lavori e saldo alla consegna definitiva.
Possibilità di acquistare box al piano seminterrato di varie metrature.
NO SPESE DI MEDIAZIONE
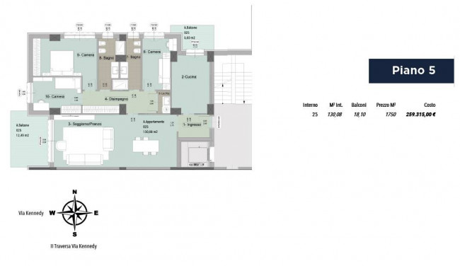
Planimetrie e relativi prezzi in foto.
Per ulteriori informazioni e/o per fissare un appuntamento, contatti ISFIN Immobiliare al numero 0984 465958 oppure visiti il sito www.isfinsrl.it.

1 mq