193 mq
4
2
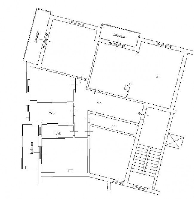
A Rende (CS) in Via J.F. Kennedy n°56 - ISFIN Immobiliare propone in Vendita un ampio Appartamento di ca 193 mq (di cui ca 169 mq sono di Appartamento e ca 24 mq di balconi) posto al terzo piano di un fabbricato dotato di ascensore.
L'immobile è composto da: ingresso - disimpegno, ampio soggiorno con balcone, cucina abitabile, disimpegno zona notte, tre camere da letto di cui due con balcone, ripostiglio e doppi servizi. Completano l'offerta posti auto scoperti e recintati.
Per ulteriori informazioni e/o eventuale appuntamento chiami Isfin al numero 0984465958 o visiti il sito www.isfinsrl.it

193 mq
4
2