195 mq
5
4
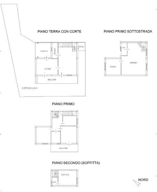
A Montalto Uffugo (CS) in Via Saverio Mercadante - ISFIN Immobiliare propone in Vendita una villetta di recente costruzione di circa 195 m² ( di cui 186 m² sono di superficie coperta e circa 7 m² di balconi) sviluppato su tre piani oltre corte ad uso esclusivo di circa 155 m².
La villetta è così composta: al piano terra: Ingresso , salone doppio, cucina abitabile con salottino tv e balcone, bagno. Al primo piano: tre camere da letto di cui due con balcone e bagno. Al secondo piano sottotetto una camera e bagno.
Al piano seminterrato con accesso da scala interna un'ampia tavernetta con bagno e lavanderia.
Per ulteriori informazioni e/o eventuale appuntamento chiami - ISFIN IMMOBILIARE - al numero 0984465958 o visiti il sito www.isfinsrl.it

195 mq
5
4