157 mq
3
2
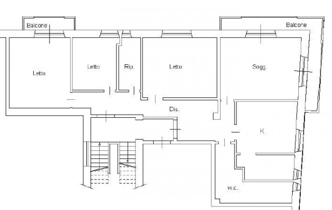
A Cosenza (CS) in Via Giuseppe Garibaldi n°2/T - ISFIN Immobiliare propone in Vendita un Appartamento ristrutturato di circa 157 m² (di cui circa 145 m² sono di Appartamento e circa 12 m² di balcone) posto al terzo piano di un fabbricato senza ascensore.
L'immobile è composto da: Ingresso - disimpegno, ampio soggiorno con balcone, cucina abitabile, tre camere da letto di cui una con balcone, ripostiglio/lavanderia, doppi servizi,
Per ulteriori informazioni e/o eventuale appuntamento chiami - ISFIN IMMOBILIARE - al numero 0984465958 o visiti il sito www.isfinsrl.it

157 mq
3
2