300 mq
4
4
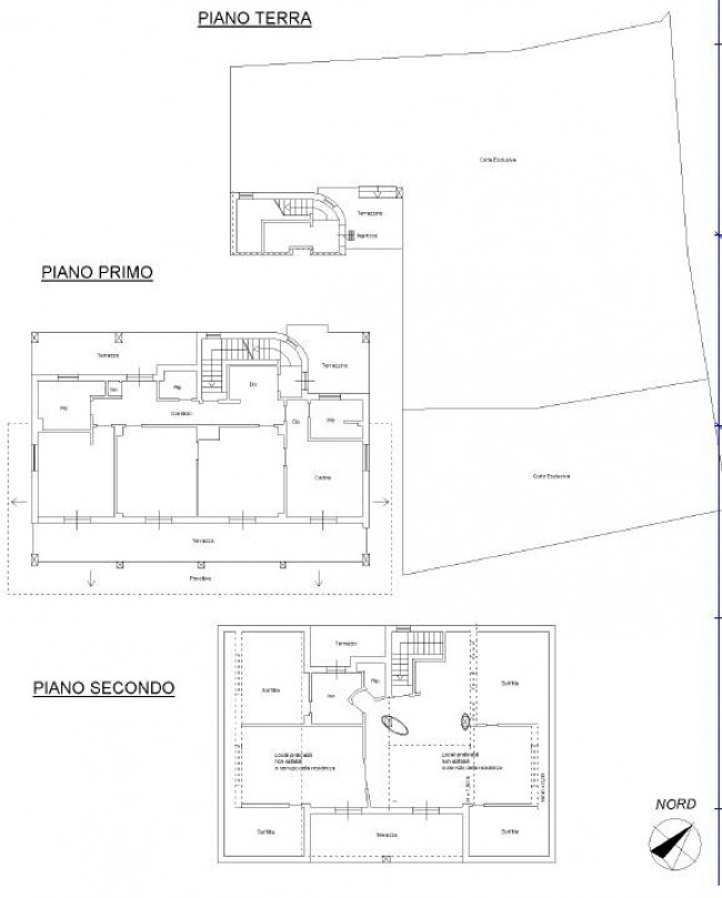
A Marano Principato (CS) in Via Marini n°4 - ISFIN Immobiliare propone in Vendita due appartamenti in villa, con possibilità di indipendenza tra loro, di ca 300 mq coperti e ca 500 mq di corte esclusiva terrazzata.
Al primo piano: ingresso, corridoio, soggiorno e cucina abitabile con accesso al terrazzo, 2 camere, 2 bagni, ripostiglio/lavanderia e balcone. Al piano superiore: open space con camino e allacci per cucina con accesso al terrazzo, camera, bagno, ripostiglio e balconcino.
Gli immobili al momento sono comunicanti ma con l'istallazione di una scala esterna potrebbero diventare indipendenti l'uno dall'altro.
Completano l'offerta una cantinola, posti auto recintati / scoperti e spazio esterno.
Per ulteriori informazioni ed un eventuale appuntamento chiami ISFIN Immobiliare al numero 0984 465958 o visiti il sito www.isfin.it.

300 mq
4
4