310 mq
4
3
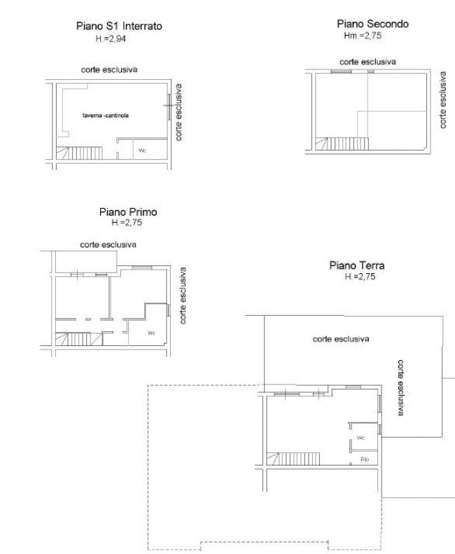
A San Pietro in Guarano (CS) in Via Padula Due Forni n°60 - ISFIN Immobiliare propone in Vendita una villa posta su quattro livelli di ca 310 mq e ca 60 mq di giardino.
L'immobile è così suddiviso:
Piano seminterrato/tavernetta composto da: ingresso - ampio soggiorno con angolo cottura in muratura, lavanderia/wc e ripostiglio.
Piano terra composto da: ingresso - soggiorno, un bagno e ripostiglio.
Primo piano composto da: camera da letto, stanza uso studio, bagno e cabina armadio.
Secondo piano/mansarda composto da: due camere da letto e un bagno.
Completa la proprietà un impianto fotovoltaico di KW 6, climatizzatori al piano sottotetto
e stufa a pellet collegata all'impianto di riscaldamento.
Per ulteriori informazioni e/o eventuale appuntamento chiami Isfin al numero 0984465958 o visiti il sito www.isfinsrl.it

310 mq
4
3