89 mq
2
2
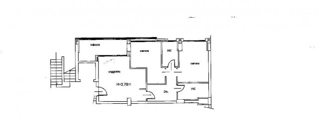
A Rende (CS) in Via G. Marconi n.59/Z - ISFIN Immobiliare propone in Vendita un Appartamento e box arredato molto luminoso di mq 89 circa (di cui mq 77 circa di Appartamento e mq 12 circa di terrazzo) posto al settimo piano di un fabbricato di recente costruzione.
L'immobile è così composto: ingresso-soggiorno con angolo cottura, due camere da letto, due bagni e terrazzino totalmente arredato.
Completa l'offerta un box auto di mq 31 al piano S1.
Per ulteriori informazioni e/o eventuale appuntamento chiami Isfin al numero 0984465958 o visiti il sito www.isfinsrl.it

89 mq
2
2