260 mq
4
3
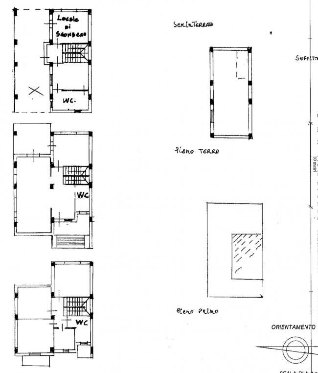
A Mendicino in Via San Paolo n. 6/35 - ISFIN Immobiliare propone in Vendita una metà di Villa bifamiliare di mq 260 circa (di cui mq 222 circa di superficie coperta e mq 40 circa di superficie scoperta) posta su tre livelli oltre a 250 mq giardino esclusivo che gira sui tre lati.
L'immobile è così composto:
Al piano seminterrato: ingresso dal cancello pedonale o carrabile su di una corte pavimentata, accesso al patio con locale tecnico e portoncino d'ingresso di casa dove troviamo soggiorno cucina, bagno e locale di sgombero;
Al piano terra: ingresso principale dal cancello pedonale e portoncino d'ingresso al salone triplo, cucina con uscita sul terrazzo, bagno e vano scala;
Al piano primo: disimpegno notte, tre camere da letto di cui una con balcone, 2 bagni di cui uno con balconcino;
Al piano sottotetto: locale soffitta con finestrone.
Per ulteriori informazioni e/o eventuale appuntamento chiami Isfin al numero 0984465958 o visiti il sito www.isfinsrl.it

260 mq
4
3