111 mq
1
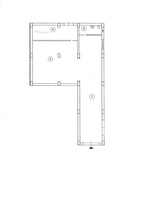
A Cosenza in Via Silvio Sesti n. 29 - ISFIN Immobiliare propone in Vendita Locale commerciale attualmente adibito a Parafarmacia con un area espositiva di circa 111 mq.
Il locale è così composto: Ingresso-sala espositiva, due vani consulenza, deposito, due vetrine e bagno.
Per ulteriori informazioni ed un eventuale appuntamento chiami ISFIN Immobiliare al numero 0984 465958.

111 mq
1