68 mq
2
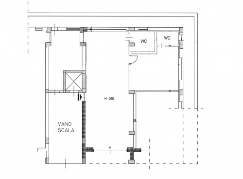
A Cosenza, in Via Gerolamo De Rada n. 70 - ISFIN IMMOBILIARE - propone in Vendita un locale garage di circa 98 mq, posto al piano strada di un fabbricato di recente costruzione con un doppio ingresso, uno carrabile su cortile condominiale e l'altro all'intero del pianerottolo.
Il locale è completamente rifinito con pavimentazione residenziale e presenta anche gli attacchi idraulici per un angolo cottura e due bagni, di cui uno completo di igienico sanitari e box doccia. Presenti anche condizionatori inverter e predisposizione riscaldamento a radiatori.
Completano l'offerta due posti auto scoperti in cortile condominiale recintato.
Per ulteriori informazioni e/o eventuale appuntamento chiami ISFIN IMMOBILIARE al numero 0984.465958 o visiti il sito www.isfinsrl.it

68 mq
2