180 mq
3
2
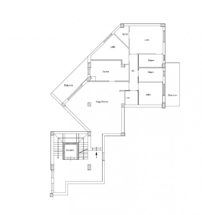
A Rende (CS) in Via Crati n°72 - ISFIN Immobiliare propone in Vendita un Appartamento di circa 175 m² ( di cui circa 150 m² sono di Appartamento e circa 25 m² di balconi) posto al quarto piano di un fabbricato di recente costruzione dotato di ascensore.
L'immobile è composto da: Ingresso, ampio soggiorno luminoso con balcone, cucina abitabile, disimpegno notte, tre camere da letto di cui una con cabina armadio, ripostiglio/lavanderia, e doppi servizi.
Completa l'offerta un posto auto nel cortile condominiale.
Possibilità di acquistare un box.
Per ulteriori informazioni ed un eventuale appuntamento chiami ISFIN Immobiliare al numero 0984 465958 o visiti il sito www.isfin.it.

180 mq
3
2